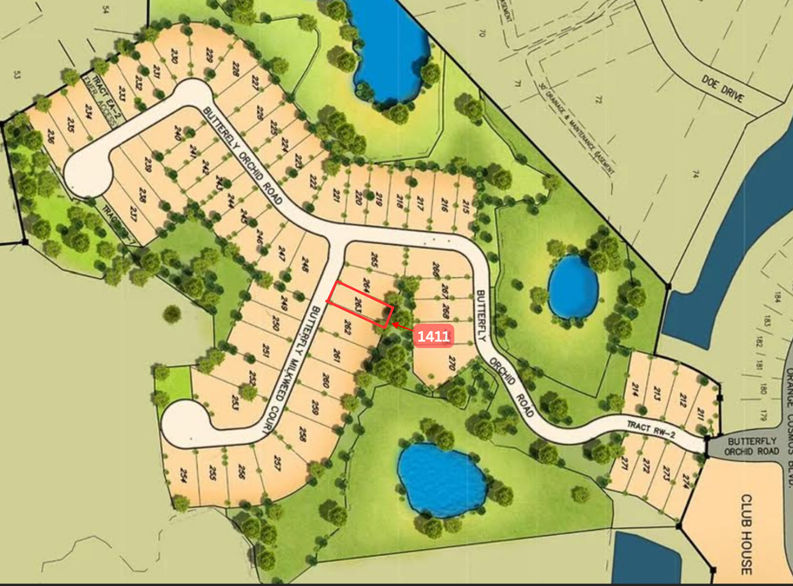
1411 Butterfly – Lot 263

$150,000

Lot

7,497 Square Feet Lot

BIG DEAL ALERT — 27 LOTS, DISNEY CORRIDOR “This is the kind of opportunity that builds empires. Believe me.” Watersong Resort is releasing an exclusive bulk package of 27 prime lots — and it’s the type of deal serious investors fight for. Perfectly positioned minutes from Disney and Orlando’s world-famous theme parks, this package gives you control of the hottest short-term rental product on the market. 22 lots (50×120 ft.) 12-Bedroom Vacation Homes 5 lots (70×120 ft.) 15-Bedroom Estates Six-Month Build Rule: Start first 10 within 6 months, then build in batches of 10 Here’s the winning formula: Park Square Homes builds them all — with the two most profitable floor plans of the past 3 years. These designs rent at top rates, stay booked, and deliver serious cash flow. Smart investors know: timing is everything. Bulk inventory like this, in a gated resort with global demand, doesn’t hit the market twice. Secure it now — before someone else does.

INTERESTED? LET'S CONNECT

IMAGES GALLERY

Contact Us